منتجات
محول تنازلي 300 كيلو فولت أمبير
القدرة: 300 كيلو فولت أمبير
جهد الإدخال: 11 كيلو فولت
جهد الخرج: 0.4KV
الأمبير: 15.7 أمبير/433.0أ
التردد: 50/60 هرتز
نظام التبريد: اونان
ميزات
وصف المنتج:
إن المحول المتدرج بقدرة 300 كيلو فولت أمبير عبارة عن معدات كهربائية عالية الجودة مصممة لخفض خرج الجهد. هذا المحول مثالي لنقل الطاقة الكهربائية وأنظمة التوزيع والبيئات الصناعية. بفضل تصميمه المتطور، يتميز هذا المحول بكفاءة عالية في تحويل طاقة الجهد العالي إلى طاقة جهد منخفض للاستخدام الآمن والدقيق. إنه جهاز موثوق ومتين يوفر طاقة فعالة ومتسقة لمختلف التطبيقات.
معلمات المنتج:
القدرة: 300 كيلو فولت أمبير
جهد الإدخال: 11 كيلو فولت
جهد الخرج: 0.4KV
300 أمبير محول كيلو فولت أمبير: 15.7 أمبير/433.0 أمبير
التردد: 50/60 هرتز
نظام التبريد: اونان
حجم فيوز المحولات 300 كيلو فولت أمبير: 47.1 أمبير
الشهادات: CE، UL، ISO
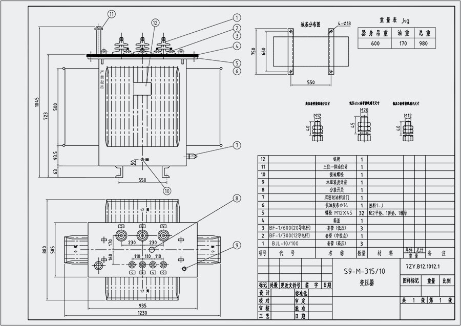
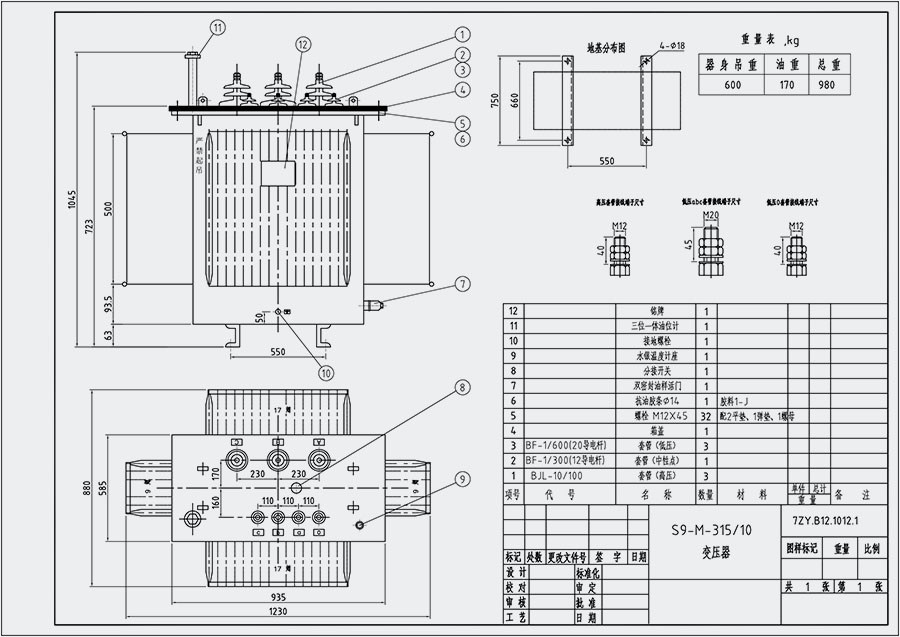
حجم المحول 300 كيلو فولت أمبير: 1230*880*1045 ملم
تفاصيل المنتج:


أجزاء المنتج:

رسومات المنتج:
نحن نقدم رسومات المنتج الشاملة والمفصلة مع الأبعاد والوزن والتفاصيل الأساسية الأخرى للرجوع إليها واستخدامها. اتصل بنا للحصول على مزيد من المعلومات والحصول على عرض أسعار لمتطلباتك المحددة.

مزايا المنتج:
- تنظيم الجهد الفعال لإخراج الطاقة بشكل آمن ودقيق
- يقلل من مخاطر المخاطر الكهربائية وتلف المعدات
- يعزز عمر الأجهزة الكهربائية ويضمن حسن أدائها
- يدعم إمدادات الطاقة المستقرة والمستمرة للعمليات الصعبة
- سهل التركيب والاستخدام مع الحد الأدنى من متطلبات الصيانة
- قابلة للتخصيص لتلبية متطلبات المشروع المختلفة

تطبيقات المنتج:
يتم استخدام المحول التنازلي بقدرة 300 كيلو فولت أمبير على نطاق واسع في مختلف البيئات الصناعية والتجارية والسكنية حيث توجد حاجة لتحويل الجهد العالي إلى الجهد المنخفض. وتشمل تطبيقاتها:
- الآلات والمعدات الصناعية
- مراكز البيانات وغرف الخوادم
- مصانع التصنيع والإنتاج
- المستشفيات والمرافق الطبية
- المباني التجارية والمكاتب
- المجمعات السكنية والشقق

الوسم : محول 300 كيلو فولت أمبير، الصين، الموردين، الشركات المصنعة، مصنع، شراء، السعر، للبيع
قد يعجبك ايضا
إرسال التحقيق




