منتجات
محولة 500 ك.ف.أ 3 فاز
الموديل: S-500/11-0.415
القدرة: 500 كيلو فولت أمبير
الجهد: 11 / 0.415 كيلو فولت
مجموعة المتجهات: Dyn11
P0:<1100W
بك:<5400W
المملكة المتحدة:4%
ميزات
محول 500 كيلو فولت أمبير 3 مراحل- حل الطاقة النهائي
يعد محول 500 كيلو فولت أمبير ثلاثي الطور أحد أكثر حلول الطاقة كفاءة المتوفرة في السوق. تم تصميم هذا المحول لتحويل الطاقة الكهربائية ذات الجهد العالي إلى طاقة كهربائية منخفضة الجهد للاستخدام في البيئات الصناعية والتجارية. تم تصنيع المحول الخاص بنا وفقًا لأعلى المعايير وتم تصميمه مع أخذ المتانة والكفاءة في الاعتبار.

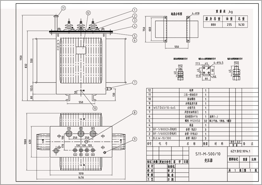
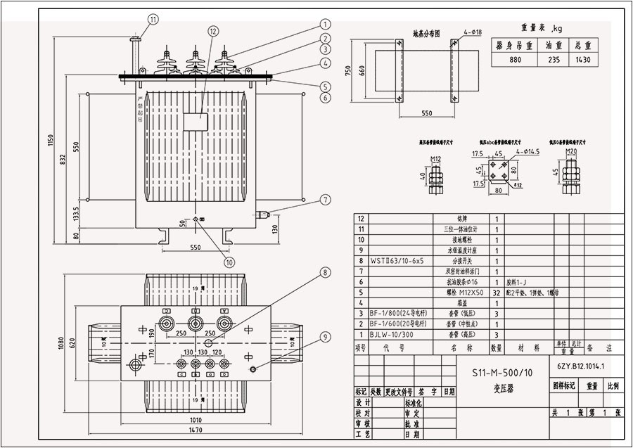
500 كيلو فولت أمبير 11/0.415 كيلو فولت ورقة بيانات المحولات
الموديل: S-500/11-0.415
القدرة: 500 كيلو فولت أمبير
الجهد: 11 / 0.415 كيلو فولت
مجموعة المتجهات: Dyn11
P0: <1100W
بك:<5400W
المملكة المتحدة:4%
مادة اللف: النحاس
الأبعاد: 1430*1000*1180 ملم
الوزن: 1500 كجم
500 كيلو فولت أمبير 11/0.415 كيلو فولت سعر المحول: 4*24 دولار أمريكي.00/SET
مواصفات المنتج:
- كفاءة عالية: تم تصميم المحول الخاص بنا ليكون عالي الكفاءة، مع معدل كفاءة يبلغ 98%.
- صغير الحجم وخفيف الوزن: المحول صغير الحجم وخفيف الوزن، مما يجعل من السهل تركيبه في إعدادات مختلفة.
- متين: تم تصميم المحول بمواد عالية الجودة مما يجعله مقاومًا للظروف البيئية القاسية.
- مستويات ضوضاء منخفضة: مستوى الضوضاء المنخفض للمحول يجعله مثاليًا للاستخدام في المناطق السكنية والتجارية.
- تصميم متقدم: تم تصميم المحول بهندسة متقدمة، مما يضمن مستوى عالٍ من الأداء والموثوقية.
رسم المنتج:
يشتمل رسم منتجنا على رسم توضيحي تفصيلي للمحول، يوضح المكونات المختلفة ووظائفها. هذا الرسم مفيد لفهم هيكل وتصميم المحول.

تغليف المنتج:
يتم تعبئة محولنا ثلاثي الطور بقدرة 500 كيلو فولت أمبير في صندوق قوي ومتين يحمي المحول من التلف أثناء التحميل والتفريغ والنقل. تم تصميم عبواتنا لضمان وصول المنتج إلى العميل في حالة ممتازة.

حالة المنتج
لقد تم استخدام محولنا بنجاح في مختلف البيئات الصناعية والتجارية. على سبيل المثال، تم استخدامه في محطات توليد الطاقة، ومصانع التصنيع، والمباني التجارية مثل مراكز التسوق والمستشفيات. تسلط دراسة الحالة الضوء على كفاءة المحول وموثوقيته ومتانته.

معنى محول 500 كيلو فولت أمبير
محول 500 كيلو فولت أمبير (كيلو فولت أمبير) هو قطعة من المعدات الكهربائية المستخدمة لنقل الطاقة الكهربائية بين دائرتين أو أكثر من خلال الحث الكهرومغناطيسي. تبلغ سعته 500 كيلو فولت أمبير، وهو ما يشير إلى الحد الأقصى لكمية الكهرباء التي يمكنه التعامل معها. يستخدم هذا المحول عادةً في البيئات الصناعية أو التجارية لخفض الكهرباء ذات الجهد العالي إلى جهد أقل يمكن استخدامه بأمان بواسطة الآلات والأجهزة.
الوسم : محول 500 كيلو فولت أمبير 3 مراحل، الصين، الموردين، الشركات المصنعة، مصنع، شراء، السعر، للبيع
قد يعجبك ايضا
إرسال التحقيق




