منتجات
محول 12.5 ميجا فولت أمبير
تصنيف الجهد: 33 كيلو فولت/11 كيلو فولت
تصنيف الطاقة: 12.5 ميجا فولت أمبير
التردد: 50 هرتز أو 60 هرتز
التبريد: أونان/أوناف
ميزات
مقدمة لمحول 12.5MVA
محول 12.5MVA هو محول كهربائي عالي الأداء مصمم للاستخدام في التطبيقات الصناعية المختلفة. إنه مصمم للتعامل مع مستويات الجهد العالي ويمكن أن يوفر نقل طاقة موثوقًا وفعالًا للآلات والمعدات الثقيلة. في وصف المنتج هذا، سنقدم نظرة عامة على الميزات والمواصفات الرئيسية لمحول 12.5MVA.
تطبيقات المنتج
يستخدم محول 12.5MVA بشكل أساسي في التطبيقات الصناعية حيث يتطلب الجهد العالي لتشغيل الآلات والمعدات الكبيرة. إن تصميمه القوي وقدراته عالية الأداء يجعله مناسبًا للاستخدام في تطبيقات مختلفة، مثل:
- توليد الطاقة
- مصافي النفط والغاز
- مصانع الصلب
- مصانع الكيماويات
- عمليات التعدين
- مرافق التصنيع الكبيرة

مواصفات المنتج
تم تصميم محول 12.5MVA بمواد عالية الجودة وتكنولوجيا متقدمة لضمان الأداء الأمثل والموثوقية. بعض المواصفات الرئيسية لهذا المحول تشمل:
تصنيف الجهد: 33 كيلو فولت/11 كيلو فولت
تصنيف الطاقة: 12.5 ميجا فولت أمبير
التردد: 50 هرتز أو 60 هرتز
التبريد: أونان/أوناف
مجموعة المتجهات: Yyn0 Dyn11
مستوى الضوضاء: أقل من 60 ديسيبل
الكفاءة: تصل إلى 99.4%
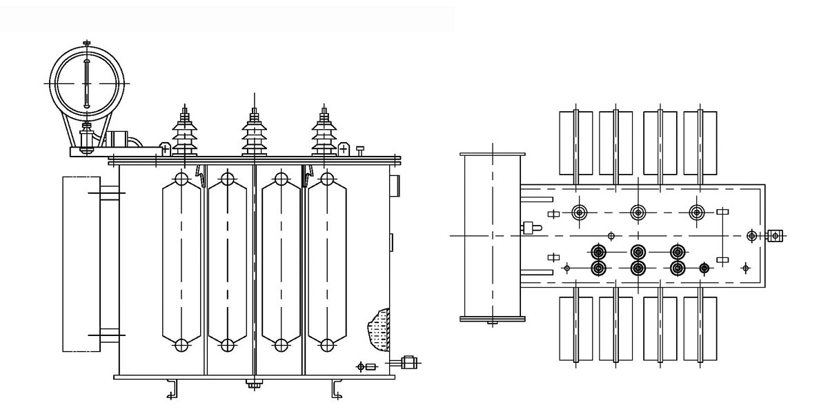
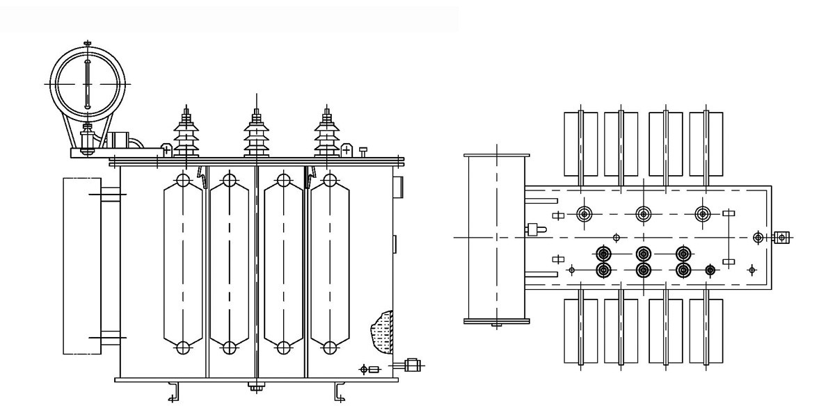
رسومات المنتج
لقد قمنا بتضمين رسومات تفصيلية لمحول 12.5MVA لمساعدتك على فهم هيكله وأبعاده وتخطيط مكوناته بشكل أفضل. ستوفر هذه الرسومات فكرة أفضل عن كيفية تركيب المحول وتشغيله لضمان الأداء الأمثل.

اختبار المنتج
يتم اختبار كل محول بقدرة 12.5 ميجا فولت أمبير بدقة للتأكد من أنه يلبي أعلى معايير الجودة. نقوم بإجراء مجموعة من الاختبارات، مثل مقاومة اللف، ومقاومة العزل، وعامل الطاقة، وفقدان عدم التحميل، للتأكد من أن المحول يعمل بشكل صحيح.

تغليف المنتج
يتم تعبئة محول 12.5MVA بعناية لضمان حمايته أثناء الشحن والمناولة. نحن نستخدم مواد عالية الجودة، مثل الصناديق الخشبية أو المنصات الخشبية، لضمان التسليم الآمن للمحول إلى وجهته.

خاتمة
محول 12.5MVA هو محول عالي الأداء مصمم للاستخدام في التطبيقات الصناعية المختلفة. بفضل ميزاته المتقدمة وتصميمه القوي، فإنه يوفر نقل طاقة موثوقًا وفعالًا للمعدات والآلات الثقيلة. نأمل أن يكون وصف المنتج هذا قد زودك بفهم أفضل للميزات والمواصفات الرئيسية لمحول 12.5MVA.
الوسم : محول 12.5mva، الصين، الموردين، الشركات المصنعة، مصنع، شراء، السعر، للبيع
قد يعجبك ايضا
إرسال التحقيق




